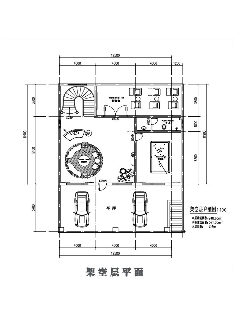
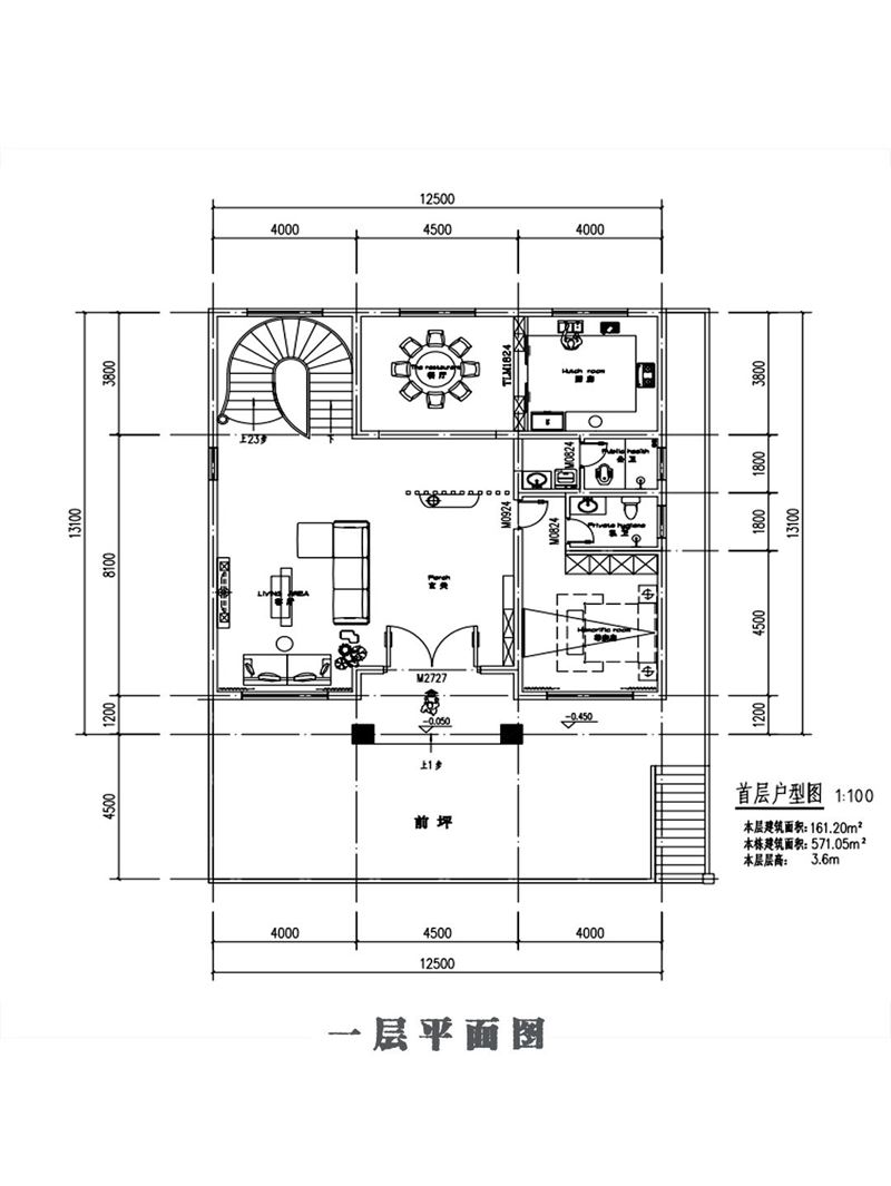
二层欧式别墅设计图,玄关+旋转楼梯+书房(客卧)+影音室+台球室+大休闲厅
二层欧式别墅
开间:13.7米
进深:17.6米
占地面积:248平
建筑面积:571平
户型:5房4厅1厨5卫,玄关+旋转楼梯+书房(客卧)+影音室+台球室+大休闲厅+架空层车库+大前坪。适合喜欢欧式风格的年轻朋友





热门内容:
二层欧式别墅
开间:13.7米
进深:17.6米
占地面积:248平
建筑面积:571平
户型:5房4厅1厨5卫,玄关+旋转楼梯+书房(客卧)+影音室+台球室+大休闲厅+架空层车库+大前坪。适合喜欢欧式风格的年轻朋友




