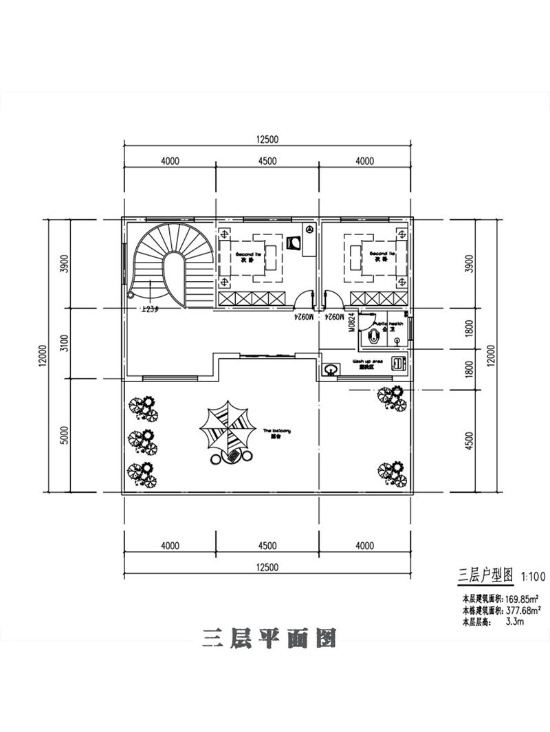
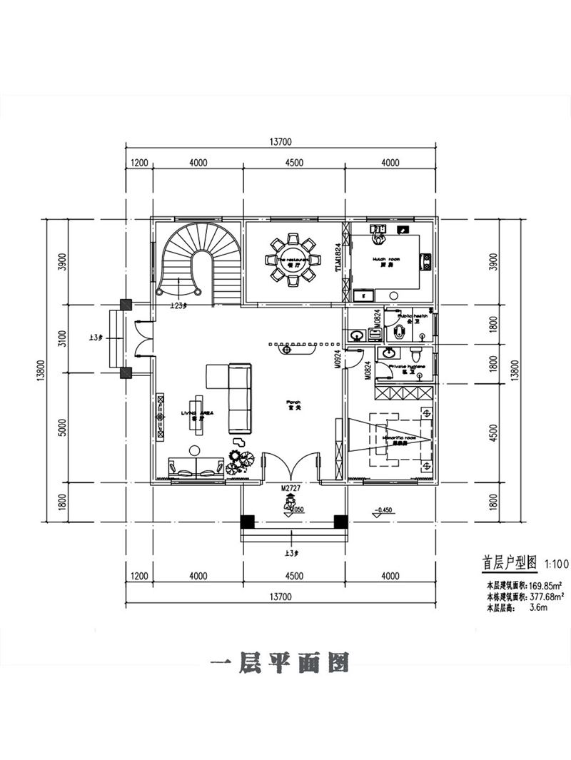
三层欧式别墅设计图,玄关+旋转楼梯+挑空客厅+书房(客卧)+门厅+大露台
三层欧式别墅设计图。
开间:12.5米
进深:12.0米
占地面积:169平
建筑面积:377平
户型:6房3厅1厨5卫,玄关+旋转楼梯+挑空客厅+书房(客卧)+门厅+大露台。适合喜欢欧式风格的年轻朋友

2026-04-232026-04-23


热门内容:
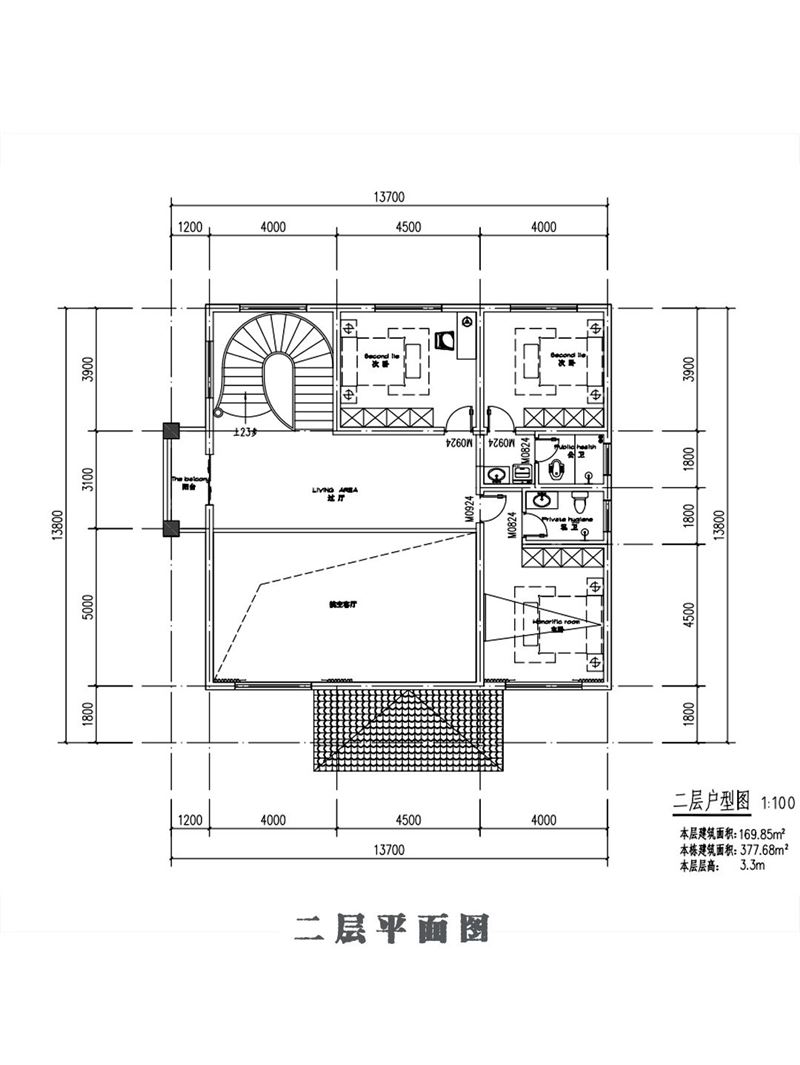
三层欧式别墅设计图。
开间:12.5米
进深:12.0米
占地面积:169平
建筑面积:377平
户型:6房3厅1厨5卫,玄关+旋转楼梯+挑空客厅+书房(客卧)+门厅+大露台。适合喜欢欧式风格的年轻朋友

2026-04-232026-04-23

