两层欧式别墅设计图,门厅+玄关+旋转楼梯+书房(客卧)+露台
两层欧式别墅设计图
开间:12.0米
进深:12.02米
占地面积:147平
建筑面积:274平
户型:5房3厅1厨4卫,门厅+玄关+旋转楼梯+书房(客卧)+露台。适合喜欢欧式风格的年轻朋友
2026-04-23
2026-04-232026-04-23

热门内容:
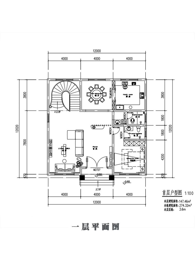
两层欧式别墅设计图
开间:12.0米
进深:12.02米
占地面积:147平
建筑面积:274平
户型:5房3厅1厨4卫,门厅+玄关+旋转楼梯+书房(客卧)+露台。适合喜欢欧式风格的年轻朋友
2026-04-23
2026-04-232026-04-23
