19358762333
当前位置:墅小二  -  本地文章  -  建房图纸

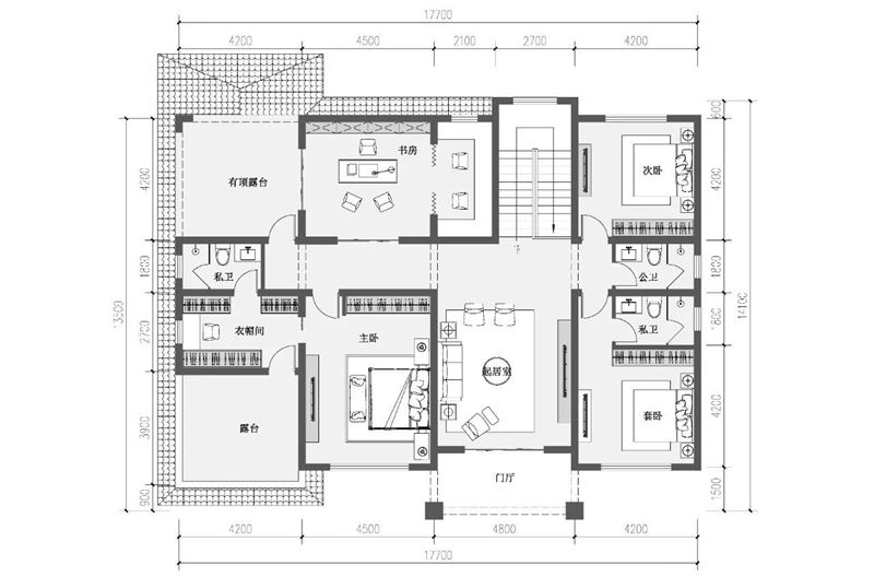
二层新中式别墅设计图,二层单独起居室,适合宅基地面宽较大

2026/4/23 11:30:37 评论:0 浏览量:3

二层新中式别墅设计图

开间:17.7米

进深:15.0米

占地面积:230平

建筑面积:430平

户型:6房4厅1厨6卫,独立门厅+堂屋+车库+吧台+综合厨房+书房+露台。二层单独起居室,适合宅基地面宽较大.

评论 
还没有人评论此条信息!
19358762333
  • Q Q: 4292855515
  • 微信: gzwbwcom
  • 客服微信二维码
  • 公众号二维码
微信公众号
  • 微信小程序二维码
微信小程序
Copyright © 2026 “墅小二”版权所有  |  ICP证:黔ICP备2024037587号  |  技术支持:墅小二(v2025.1)  |  
网页内的所有信息均为用户自由发布,交易时请注意识别信息的虚假,交易风险自负!网站内容如有侵犯您权益请联系我们删除,举报信息、删除信息联系客服