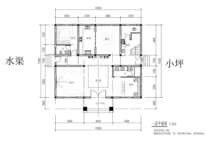
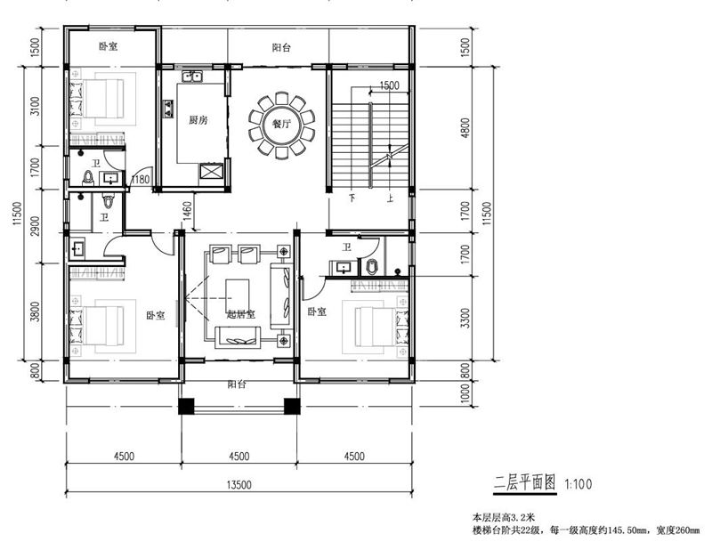
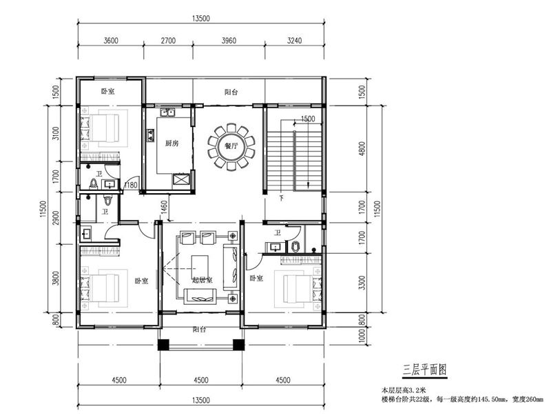
三层新中式别墅设计图,堂屋+茶室+双阳台,共用楼梯,独门入户
三层新中式别墅设计图
开间:13.0米
进深:11.5米
占地面积:158平
建筑面积:470平
户型:7房7厅3厨9卫,堂屋+茶室+双阳台。一层为公共使用层或者父母生活起居层,二三层独立套房设计,共用楼梯,独门入户。适合宅地基不够分,兄弟二人共建。




热门内容:
三层新中式别墅设计图
开间:13.0米
进深:11.5米
占地面积:158平
建筑面积:470平
户型:7房7厅3厨9卫,堂屋+茶室+双阳台。一层为公共使用层或者父母生活起居层,二三层独立套房设计,共用楼梯,独门入户。适合宅地基不够分,兄弟二人共建。



