19358762333
注册
/
登录
QQ登录
微信登录
保存桌面
我的收藏
手机版
手机扫码访问
微信平台
信息
信息
商家
文章
问答
热门搜索:
发布信息
商家入驻
网站首页
房产信息
招聘信息
二手汽车
二手信息
其他广告
全部信息
商家大全
用户登陆
快速导航:
置顶广告
招聘信息
二手房
出租房
出兑
二手汽车
最新天气
保存到桌面
客服电话/微信:19358762333
当前位置:
墅小二
-
本地文章
-
建房图纸
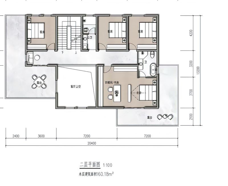
两层新中式现代风格别墅设计图,门厅+挑空客厅+工作室+大露台。
2026/4/22 23:26:32
评论:0
浏览量:4
二层现代风格别墅 开间:20.4米 进深:13.2米 占地面积:226平 建筑面积:387平 户型:6房3厅1厨3卫,门厅+挑空客厅+工作室+大露台。
上一篇:
二层现代风格别墅设计图,诠释着
下一篇:
二层现代风格别墅设计图,玄关+
评论
还没有人评论此条信息!
热门内容:
黔村规app下载地址,黔村规app怎么下载
关于我们
关于我们
联系我们
广告服务
友情链接
合作加盟
商家服务
商家入驻
企业建站服务
信息服务
发布信息
信息置顶/加红
删除信息
19358762333
Q Q: 4292855515
微信: gzwbwcom
微信公众号
微信小程序
Copyright © 2026
“墅小二”
版权所有 | ICP证:
黔ICP备2024037587号
| 技术支持:
墅小二
(v2025.1)
|
网页内的所有信息均为用户自由发布,交易时请注意识别信息的虚假,交易风险自负!网站内容如有侵犯您权益请联系我们删除,举报信息、删除信息联系客服